piolino architecte • • •

Concours:

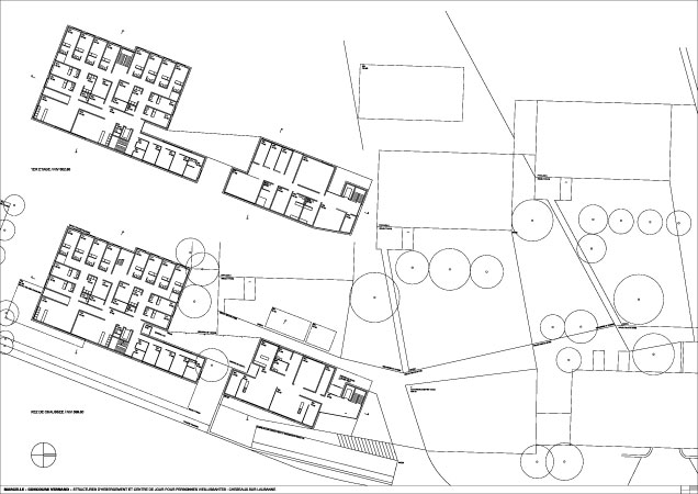
Structure d'hébergement et centre de jour pour personnes vieillissantes en situation de handicap

Slideshow Image 1 Slideshow Image 2 Slideshow Image 3 Slideshow Image 4 Slideshow Image 5